Teton County Wyoming Housing Department Homepage
Search

Grove Unit 210

 Scott Lane

**Important! To apply for this rental unit, you must have completed, updated & verified the Online Intake Form prior to June 12th. Please do not make any changes to your essential data during the weighted drawing period or you will not be eligible to apply.**

Grove Phase 1, Unit 210, 250 Scott Lane:

  • 2-bedroom, 2-bathroom, approximately 900 square feet
  • Range, refrigerator, dishwasher, microwave, large deck, storage, and washer & dryer.
  • NO PETS ALLOWED
  • Income Range: 0% to 50% of the Median Family Income -see income limits listed below
  • Occupancy Requirement: two (2) or more people
  • The monthly rental amount is $799 and includes electricity, water, sewer, and trash. 
  • At least one adult in the household must work a minimum of 1,560 hours per year. Please read the policies to enter any weighted drawing: Housing Department Rules & Regulations, Section 4: Weighted Drawing.
  • Initial rental term begins September 2024. The first month's rent + security deposit will be due at signing. The security deposit is $1,000. 
  • Deadline to Apply: Tuesday, June 25th by 4:00 PM. No late or incomplete entries will be accepted. If selected first for this unit you will be notified by phone. All others will be sent an email notice. 
  • All forms needed to enter this drawing are here, under "Rentals - Weighted Drawing Entry Form

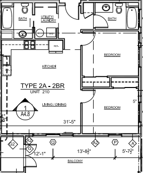
Floor Plan:

210

Income Limits - households may not earn more than the limits listed below:

Two-Person Household:     $0 to $53,240

Three-Person Household:  $0 to $59,895

Four-Person Household:    $0 to $66,550

Five-Person Household:     $0 to $71,874

Six-Person Household:       $0 to $77,198

Calculation of Income:

Household income is based on the current income earned by all intended adult occupants of the rental unit at the time of weighted drawing using the current household income to estimate an annual (12-month) income basis. Households must use their current income and may not make changes or adjustments to earnings in order to fit within the income range.

The business income of a qualifying Household is calculated using an average of the last three (3) years of income on the business’ tax returns. A year-to-date profit and loss determination will also calculate business income. If the business has not been operating for three (3) years, the Housing Department will average income over the time the business has been operating.

Please contact the Housing Department if you have any questions or need assistance completing the forms.

 

  1. Popular Pages

Contact Us

  1. Physical Address:

  2. 320 South King Street

  3. Jackson, WY 83001

  4. Directions

  5.  

  1. Phone: 307-732-0867

  2. Fax: 307-734-3864

  3.  

  4. P.O. Box 714

  5. Jackson, WY 83001

  1. Logo Housing White.png

About Us

  1. The Housing Department works to create health housing solutions so that our workforce can live, spend, and volunteer locally, maintaining the community character we all cherish.  Learn more about our mission by visiting our About page.

Government Websites by CivicPlus®
Arrow Left Arrow Right
Slideshow Left Arrow Slideshow Right Arrow