Teton County Wyoming Housing Department Homepage
Search

260 Scott Lane Unit 302

Closed 9/18/2020 Sale Price $271,779

Living


  1. English
  2. haga clic aquí para español

Our office is open and we are happy to help you. To achieve social distancing, we encourage you to call us if you need help rather than coming into the office. If you do come into the office, please consider wearing a mask. Please upload your applications through our intake form. You can also email it or drop it in our mailbox outside our office door. Be sure to double check with us to make sure we received it. Thank you for your patience during this time of social distancing.

Home for sale: 260 Scott Lane Unit 302

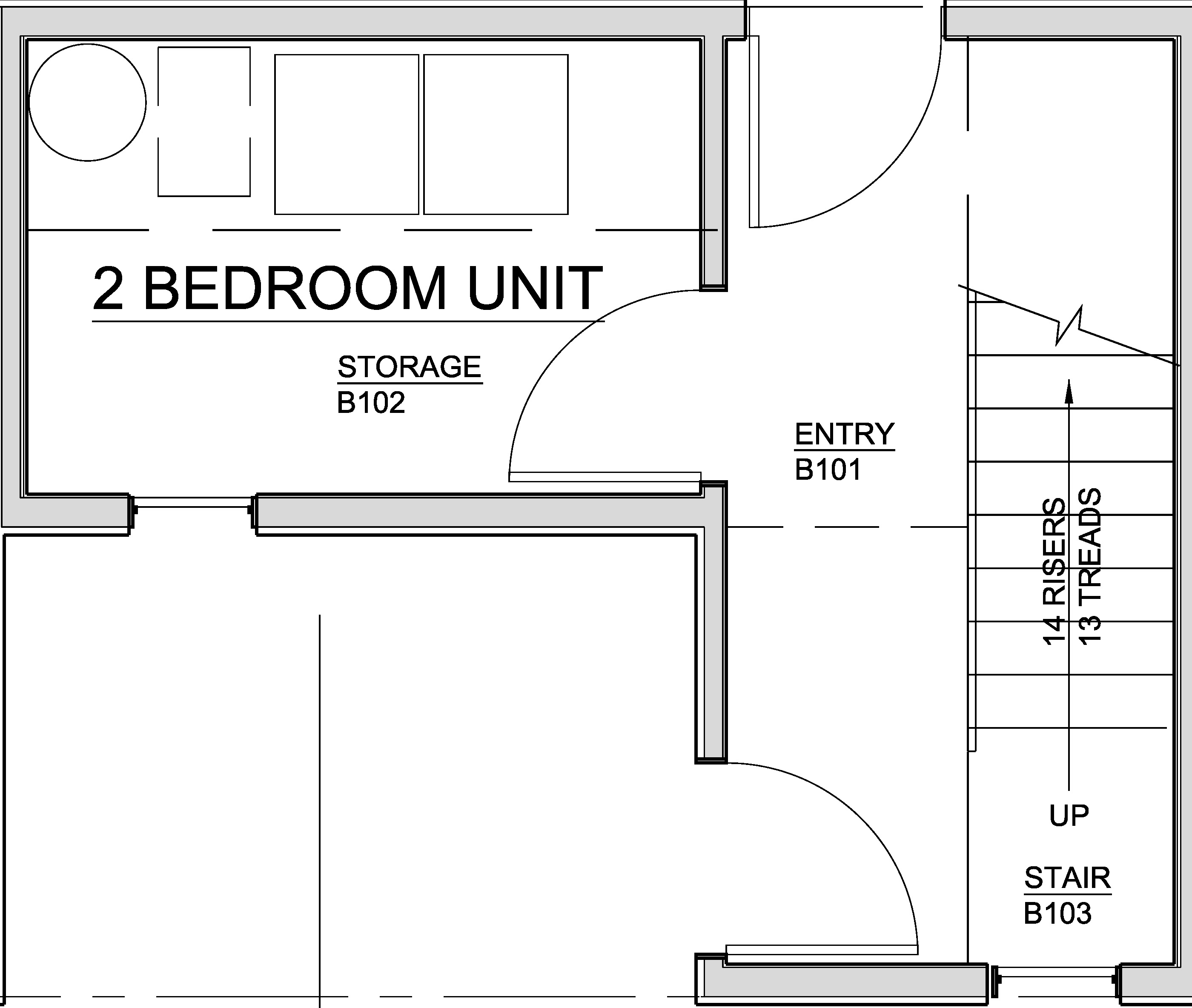
2-bedroom, 1-bathroom, 2- parking spaces, range, refrigerator, microwave, dishwasher, large deck, storage, 1,179 square feet

Home price - $271,779

Household income must be between 80% to 120% of the median family income (details below)

Household size must be 2 or more people

2 pets allowed (1 dog maximum)

Floor plans

1st floor

2nd floor

3rd floor -2 sinks in the bathroom are shown, however it has one sink.

Eligibility Requirements:

Please note the policies in effect to enter any weighted drawing: Housing Department Rules & Regulations

Weighted Drawing Entry Eligibility Highlights:

The Housing Department Online Intake Form must be filled out and submitted to enter this or any drawing. If you have not submitted an Intake form prior to the beginning of this drawing (June 24th) you will not be eligible to apply.

At least one adult in the household must be employed full-time in Teton County for a minimum of one year. The Housing Department defines full-time employment as working a minimum of 1560 hours per year (30 hours/week average).

Must have a completed Lenders Qualification Worksheet with an up to date Credit Report (provided by a local lender, AnnualCreditReport.com, or CreditKarma.com), and a completed Home Buyer Education Class Certificate all must be attached to the Weighted Drawing Entry Sheet or on file with the Housing Department. The Housing Department will keep your Lender’s Qualification on file for one year. The Home Buyer Education Certificate is good indefinitely.

The loan amount on your Lender’s Qualification worksheet is for at least the purchase price minus your down payment of the home for which you are applying. You must be able to prove your ability to secure financing.

To be eligible to enter the drawing for these homes, your household’s gross income (before taxes) must fit into the range listed below, and your households net assets must not exceed the asset limit below:


Two Person Household


$70,848 to $106,272

Three Person Household

$79,704 to $119,556

Four Person Household

$88,560 to $132,840

Five Person Household

$95,645 to $143,467

Six Person Household

$102,730 to $154,094

Net Asset Limit

$265,680

Calculation of income:

Household income is based on the current income earned by all intended adult occupants of the Restricted Housing Unit at time of weighted drawing entry using the current household income to estimate an annual (12 month) income basis. Households must use their current income and may not make changes or adjustments during a drawing period.

Business income of a qualifying Household is calculated using an average of the last three (3) years of income on the business’ tax returns. A year to date profit and loss determination will also be used to calculate business income. If the business has not been operating for three (3) years, the Housing Department will average income over the time the business has been operating.

Deadline to Apply: Tuesday July 7th by 4:00 p.m. No late or incomplete entries will be allowed, no exceptions.

All forms need to enter into this weighted drawing are here, under "Ownership - Weighted Drawing Entry Forms".

You may receive one additional entry into the drawing for every year of verified full-time employment (minimum of 1,560 hours) in Teton County with a maximum of 10 years/entries.

Please click here for information for Critical Service Providers (CSPs).

We understand that our applications to enter into the weighted drawing take time and effort, and we do not want to disqualify you due to an oversight or misunderstanding about our process. Please bring your applications in prior to the due date so that we have time to work with you, make corrections, and give feedback if anything is wrong.

Example cost break down for a purchase price of $271,779:

3.5% down payment (required)

$9,512

Loan Amount

$262,267

Principal & Interest Payment (estimated 5%)

$1,408

Property Tax (estimate)

$129

Insurance (estimate)

$100

HOA dues (estimate)

$300

Total Estimated Monthly Payment

$1,937

Special Restriction

CCR’S

First Amendment

Grove Master Rules & Regulations

Please talk to a local lender about closing costs, interest rates, and available loan programs to suit your financing needs. We recommend you choose a local lender.

  1. Popular Pages

Contact Us

  1. Physical Address:

  2. 320 South King Street

  3. Jackson, WY 83001

  4. Directions

  5.  

  1. Phone: 307-732-0867

  2. Fax: 307-734-3864

  3.  

  4. P.O. Box 714

  5. Jackson, WY 83001

  1. Logo Housing White.png

About Us

  1. The Housing Department works to create health housing solutions so that our workforce can live, spend, and volunteer locally, maintaining the community character we all cherish.  Learn more about our mission by visiting our About page.

Government Websites by CivicPlus®
Arrow Left Arrow Right
Slideshow Left Arrow Slideshow Right Arrow